![]() |
![]() |
![]() |
![]() |
![]() |
![]() |
![]() |
![]() |
![]() |
![]() |
![]() |
![]() |
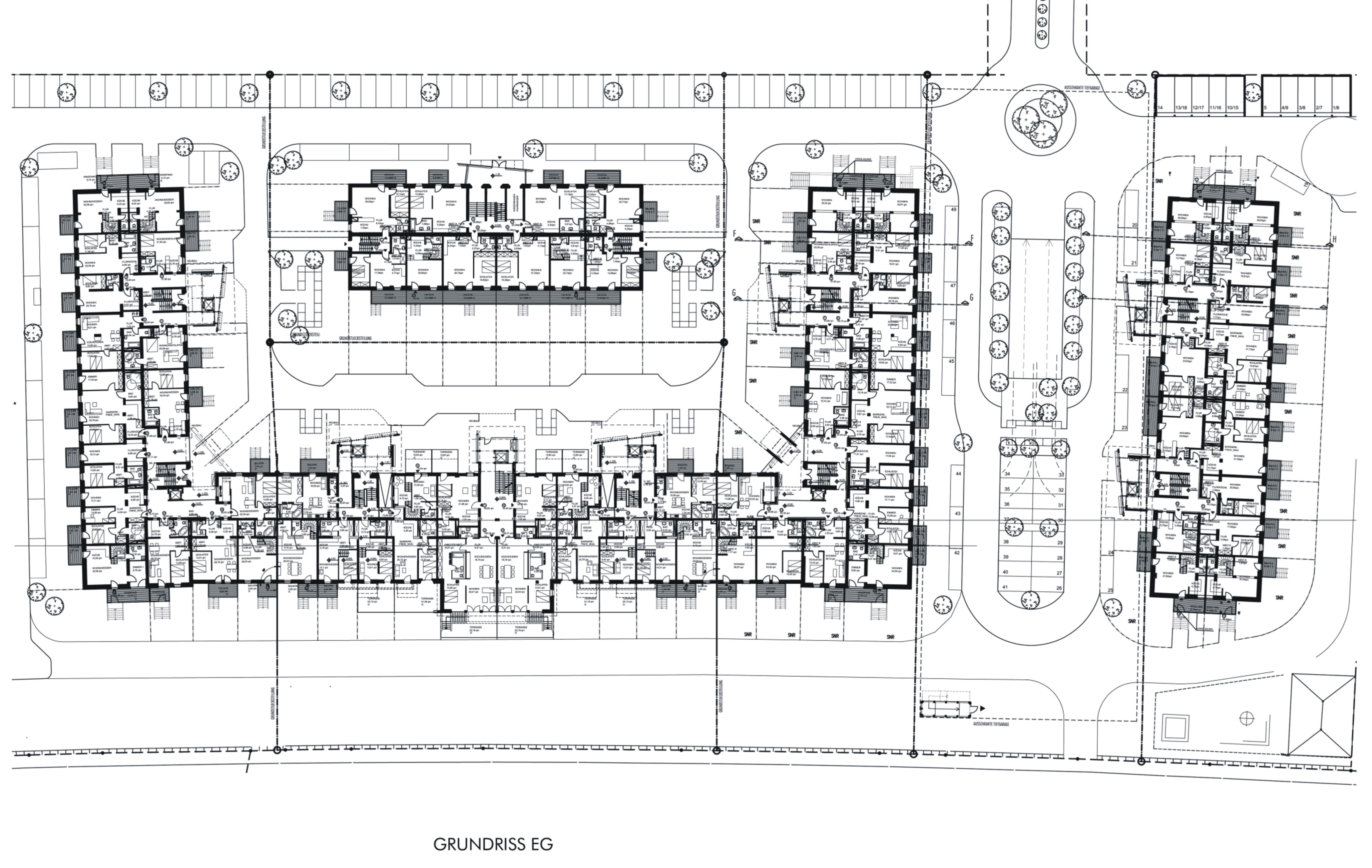
| Umbau und Sanierung einer Kaserne in Mainz Bauntrag Abgeschlossenheitsantrag Verkaufspläne Fertigstellung 2011 Der Entwurf sieht die Öffnung der Treppenhäuser und vorgstellte Balkone vor, um die Monotonie der Fassade aufzubrechen. Der Karsernencharakter kann so aufgelöst werden. Es entsteht eine mit interresanten Blickachsen und Außenräumen emontional ansprechende Wohnbebauung. |
![]() |