START
PROFIL PROJEKTE PHILOSOPHIE
ENTWICKLUNG
KONTAKT

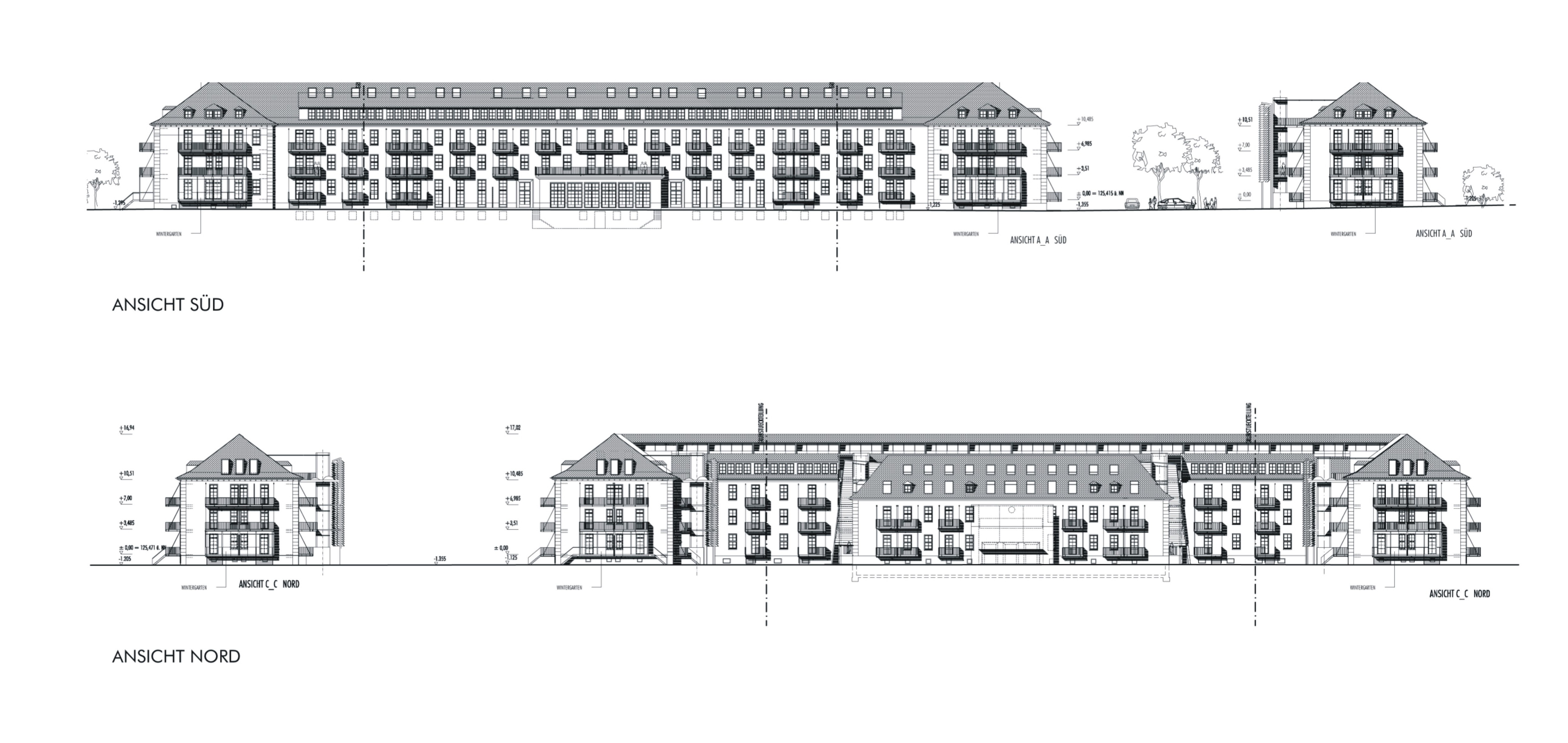
Umbau und Sanierung einer Kaserne in Mainz
Umbau und Sanierung einer Kaserne in Mainz
Bauntrag Abgeschlossenheitsantrag Verkaufspläne
Fertigstellung 2011

Der Entwurf sieht die Öffnung der Treppenhäuser und vorgstellte Balkone vor, um die Monotonie der Fassade aufzubrechen. Der Karsernencharakter kann so aufgelöst werden. Es entsteht eine mit interresanten Blickachsen und Außenräumen emontional ansprechende Wohnbebauung.


                   

                                   


        
Weitere Bilder